Samozamykacz TS 2000 srebrny, biały, brązowy

Samozamykacz GEZE TS2000 z ramieniem komplet

Charakterystyka produktu:

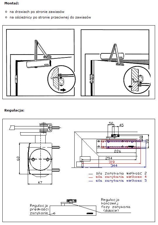
  • regulowana z przodu prędkość zamykania
  • łatwa zmiana siły zamykania w zakresie 2/4/5 (według normy PN EN1154) poprzez odsunięcie/zbliżenie samozamykacza przy montażu
  • regulowana końcowa faza zamykania (dobicie) poprzez zmianę długości ramienia
  • wpuszczana płyta montażowa

Przeznaczenie:

  • do drzwi o  ciężarze nie przekraczającym 110 kg
  • do drzwi rozwiernych, wewnętrznych / zewnętrznych, prawych lub lewych
  • do drzwi o szerokości skrzydła do 1250 mm

Montaż:

  • na drzwiach po stronie zawiasów
  • na ościeżnicy po stronie przeciwnej do zawiasów

Producenci: